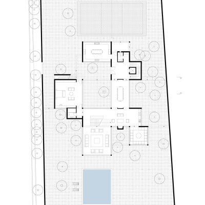
سال: 1397
موقعیت: تهران، لواسان
مساحت زمین: 2600 متر مربع
زیربنا: 1400 متر مربع
کارفرما: مهدی فولادین
وضعیت: طراحی شده